ترنج موبایل
کد خبر: ۷۳۱۷۰۸

(تصاویر) معجزه معماری در اسلو؛ آپارتمان‌های سازگار با محیط زیست!

(تصاویر) معجزه معماری در اسلو؛ آپارتمان‌های سازگار با محیط زیست!

معماران اسنوهتا، Vertikal Nydalen را به عنوان یک ساختمان "راه حل سه گانه صفر" طراحی کرده و به مصرف انرژی خالص صفر برای گرمایش، سرمایش و تهویه دست یافته اند. این امر از طریق ترکیبی از تجهیزات ژئوترمال، پنل‌های فتوولتائیک (PV)، سیستم گرمایش و سرمایش کم انرژی و تهویه طبیعی صورت گرفته است.

تبلیغات
تبلیغات

دفتر معماری بین المللی اسنوهتا از Vertikal Nydalen، یک ساختمان با معماری خاص با کاربری متنوع در اسلو (نروژ) رونمایی می‌کند.

به گزارش عصرایران، این پروژه با ترکیب یک سیستم آب و هوایی ساده، خودکفا و تهویه طبیعی، مرز‌های طراحی پایدار را جا به جا کرده است. گفتنی است که پروژه مورد نظر به عنوان یک نقطه عطف جدید برای منطقه احیا شده نایدالن عمل می‌کند.

این سازه در مکانی قرار دارد که قبلا یک ناحیه صنعتی بوده و در برنامه ریزی‌های جدید شهری به یک مرکز تجاری مدرن مبدل شده، اما لوکیشن پروژه مذکور کاربری پارکینگ داشته است.

تیم معماری طی عملکردی که تحسین بین المللی را به همراه داشته، در این منطقه یک سازه متفاوت بلندمرتبه را ساخته است.

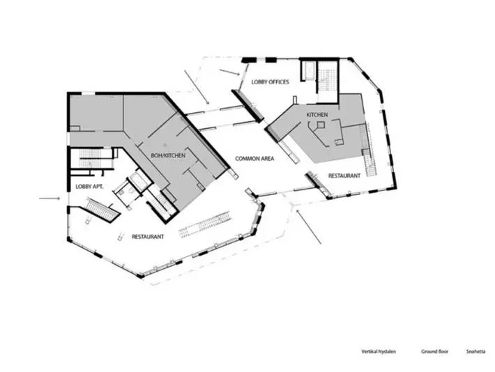
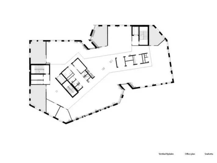
ساختمان Vertikal Nydalen که رسما در ۲۵ آوریل ۲۰۲۴ افتتاح شد، دارای رستوران‌هایی در سطح خیابان است. روی رستوران‌ها پنج طبقه فضای اداری و بر فراز آن‌ها آپارتمان‌های مسکونی قرار دارند.

معماران اسنوهتا، Vertikal Nydalen را به عنوان یک ساختمان "راه حل سه گانه صفر" طراحی کرده و به مصرف انرژی خالص صفر برای گرمایش، سرمایش و تهویه دست یافته اند. این امر از طریق ترکیبی از تجهیزات ژئوترمال، پنل‌های فتوولتائیک (PV)، سیستم گرمایش و سرمایش کم انرژی و تهویه طبیعی صورت گرفته است.

در مقایسه با یک ساختمان استاندارد، این پروژه دارای رکورد کاهش بیش از ۵۰ درصدی در انتشار CO۲ ناشی از به کار گیری مواد، حمل و نقل و مصرف انرژی است.

تبلیغات
ارسال نظرات
تبلیغات
تبلیغات
خط داغ
تبلیغات
تبلیغات